תוצאות החיפוש שלך

מגרש נדיר בארסוף!

₪ 12,000,000
הוסף למועדפים
1341

תיאור

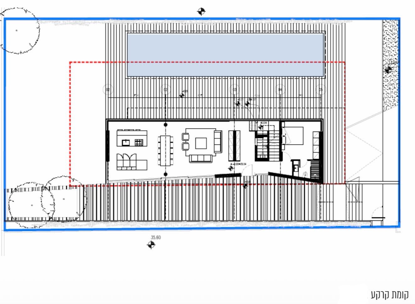
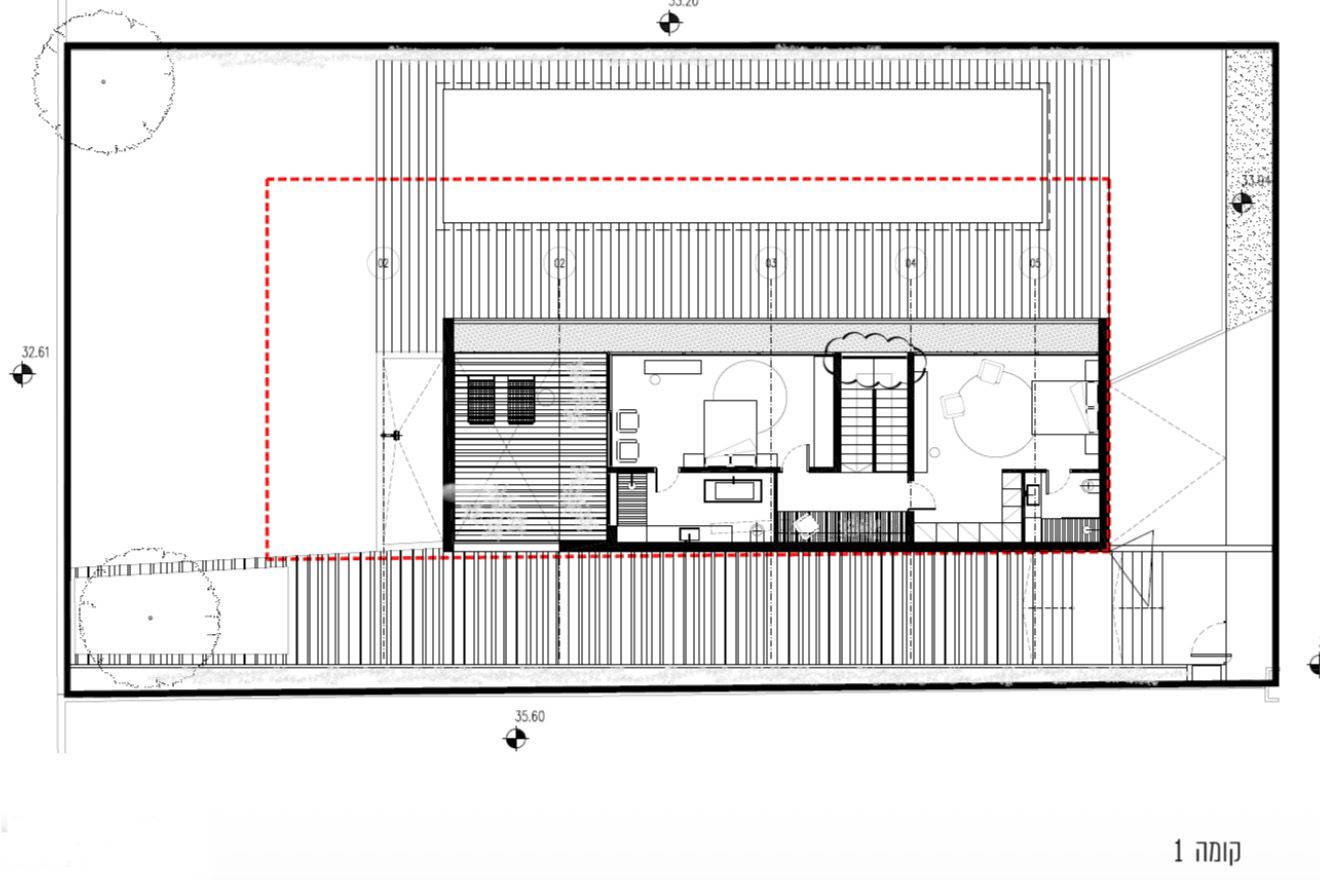
נדיר 700 מ״ר למכירה בלב היישוב הקהילתי היוקרתי ארסוף.

זכויות בנייה:
▪️ 165 מ״ר בשתי קומות
▪️ 82 מ״ר מרתף

אפשרות לליווי אדריכלי מלא לפרויקט.

 מחיר מבוקש: 12,000,000 ₪

עִיר:
מדינה / מחוז:
מדינה: ישראל
פתח ב'מפות Google '
מזהה נכס: 21046
מחיר: ₪ 12,000,000
שטח כולל (מ״ר): 700.00

נכס ביקורות

אתה צריךהתחברות על מנת לכתוב ביקורת

עמית פילה

יזמות, שיווק נכסים ופרויקטים בנדל״ן
0 רישומים

צרו קשר





    • חיפוש נכס

      אפשרויות חיפוש נוספות

    השוואת נכסים